Trasforma la tua casa in emozione!
Ogni spazio ha il potenziale per diventare un luogo funzionale, armonioso ed emozionante.
Il mio obiettivo è progettare ambienti che rispecchino il tuo stile e migliorino concretamente la tua qualità di vita.
Ti accompagno in ogni fase, dalla prima idea fino alla realizzazione finale, con soluzioni personalizzate e attenzione a ogni dettaglio.
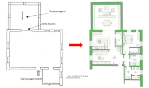
Ristrutturazioni complete

Una ristrutturazione completa è l’opportunità di trasformare la tua casa in uno spazio che unisce estetica, funzionalità e comfort, valorizzandone ogni aspetto.
Il mio obiettivo è creare spazi che uniscano estetica e praticità ed ogni progetto viene sviluppato con attenzione, ascolto e competenza, per darti una casa più bella, più funzionale e più in sintonia con te.
L’obiettivo è offrirti una casa completamente rinnovata, capace di rappresentarti e migliorare concretamente la qualità del tuo vivere quotidiano.
Il servizio include:
• studio della distribuzione degli spazi
• progettazione personalizzata degli ambienti
• ottimizzazione della funzionalità
• scelta di materiali, colori e finiture
• supporto durante tutte le fasi del progetto
Il risultato è una casa nuova, progettata intorno a te.
Restyling degli ambienti

Rinnova i tuoi spazi senza interventi strutturali invasivi.
Attraverso un restyling mirato è possibile trasformare profondamente l’aspetto e la percezione degli ambienti, valorizzando ciò che già esiste.
Con interventi non invasivi, ripenso l’equilibrio degli spazi, lavorando su colori, materiali, arredi e dettagli per dare nuova armonia e identità alla tua casa. L’obiettivo è offrirti ambienti rinnovati, più coerenti con il tuo stile e capaci di farti sentire davvero a tuo agio, in uno spazio che riconosci pienamente come tuo.
Intervengo su:
• disposizione degli arredi
• palette colori personalizzata
• illuminazione
• materiali e finiture
• armonizzazione dello stile
Il risultato è uno spazio rinnovato, elegante e coerente.
Progettazione d’interni per nuove costruzioni e 
Progettare gli interni fin dalle prime fasi consente di ottenere spazi perfettamente equilibrati, funzionali e coerenti con le tue esigenze.
Un’attenta pianificazione permette di distribuire gli ambienti in modo pratico ed efficiente, integrando fin da subito illuminazione, impianti e soluzioni tecniche all’interno del progetto, così che siano gli elementi tecnici ad adattarsi allo spazio e non il contrario.
Questo approccio garantisce un risultato più armonioso, ottimizzato in ogni dettaglio e capace di migliorare concretamente la qualità dell’abitare.
Collaboro con privati, imprese e professionisti per sviluppare progetti completi e coordinati, ottimizzando ogni ambiente e prevenendo criticità ed errori progettuali, con l’obiettivo di trasformare ogni spazio in un luogo funzionale, estetico e duraturo.
Il servizio include:
• progettazione della distribuzione degli ambienti
• studio funzionale degli spazi
• scelta di materiali e finiture
• progettazione estetica completa
Il risultato è uno spazio armonioso, funzionale e duraturo.
Il mio approccio e metodo di lavoro
Non progetto solo spazi, ma ambienti che migliorano il modo in cui vivi la tua casa, per ambienti funzionali, confortevoli ed autenticamente tuoi.
Soluzioni personalizzate
Il mio approccio nasce da un’attenta analisi delle tue esigenze, del tuo stile di vita e del tuo budget.
Ogni progetto viene sviluppato su misura, attraverso soluzioni studiate per rispondere in modo concreto e funzionale alle tue necessità, senza rinunciare alla coerenza estetica e alla cura dei dettagli.
L’obiettivo è creare spazi equilibrati, autentici e duraturi, capaci di rappresentarti e migliorare la tua esperienza quotidiana.
Consulenza online
Un servizio pratico, semplice ed economicamente accessibile, pensato per offrirti supporto progettuale ovunque tu sia.
Potrai affrontare l’intero percorso comodamente da casa tua, con la stessa attenzione, cura e qualità di una consulenza in presenza. Attraverso strumenti dedicati e una comunicazione chiara e costante, ti accompagno in ogni fase del progetto, offrendoti soluzioni personalizzate, funzionali e coerenti con le tue esigenze.
La distanza non limita la qualità del risultato, ma rende il servizio più flessibile, efficiente e accessibile.
.
Assistenza costante
Non sarai mai solo durante il percorso progettuale.
Potrai contare su un filo diretto con me in ogni fase, attraverso diversi strumenti di comunicazione e con modalità flessibili, adattate alle tue esigenze. Ti accompagnerò con attenzione e disponibilità, rispondendo ai tuoi dubbi e guidandoti nelle scelte, per garantirti un’esperienza serena, chiara e pienamente supportata.
Il mio obiettivo è offrirti un punto di riferimento costante, assicurando continuità, sicurezza e qualità durante tutto il progetto.
Collaborazioni professionali
Collaboro con:
• Agenzie immobiliari
• Imprese di costruzione e ristrutturazione
• gestori di B&B, agriturismi e case vacanza
• privati
Supporto ogni progetto con soluzioni funzionali, estetiche e mirate alla valorizzazione degli spazi.

